Case

京都市でマンション建設等を計画中の方へ

Massing Study

ボリュームチェックサービス

山野設計では、投資用マンション・テナントビル・ホテルなどの事業用建築を対象に、敷地条件や法規制、京都市特有の建築条件を踏まえたボリュームチェックを行います。景観政策(景観地区・風致地区)、特別用途地区、地区計画、京都市建築基準条例、中高層条例などにも対応し、法規チェックから敷地図、単線プラン(複数パターン可)、日影規制・天空率の検討、計画建築概要・面積表の作成まで、一連の流れで実施します。

サービス内容Service Detail

01

当該地の法規チェック

02

敷地図の作成

敷地測量図があれば計画の精度は高くなります

03

単線プラン(平面図)の作成

ご要望によっては数パターン作成

04

日影規制・天空率の検討(場合による)

05

計画建築概要・面積表の作成

Massing Study
ボリュームチェックとは?

建てられる建物の規模や戸数を事前に把握し、土地の可能性を見極める初期検討です。
ボリュームチェックとは、建築を計画する際に、その敷地にどの程度の建物が建てられるかを把握するための調査・シミュレーションです。ここで言う「ボリューム」とは、延床面積や階数、住戸数、建物の高さ、駐車場の配置可能数など、建物の物理的な大きさを総合的に示すものです。
建ぺい率や容積率、斜線制限や日影規制といった建築基準法の制限に加え、事業の収支や用途に応じた基本的なプランの成否を見極めるうえで欠かせないステップとなります。

Massing Study
京都市におけるボリュームチェック

京都市では、他の地域と比べて独自の建築規制が多く存在します。特に、中高層建築物条例や景観条例は、建物の高さ・形状・デザインに厳しい制約を課すことがあり、十分な事前検討がなければ計画の見直しや遅延につながるおそれもあります。
また、周辺住民への説明や日照・通風への配慮も求められるため、ボリュームチェックの段階でこれらの要素を反映させておくことが、スムーズな確認申請や近隣対応に直結します。京都市での土地活用や不動産開発を成功させるためには、早い段階で地域に精通した設計者によるボリュームチェックを行うことが非常に重要です。

Massing Study
京都市特有の必要な手続き

建築場所や用途、敷地面積、延床面積によりますが、主に以下のような内容が必要になります。

  • 京都市中高層条例(略)の届出及び許可…近隣住民へ建築計画の説明及び報告など
  • 景観地区内だと認定申請及び完了届…地区ごとのデザイン基準に適合した建築物の申請
  • 埋蔵文化財に関する届出…図面などの提出
  • 地域コミュニティ活性化推進条例の届出…その地域の自治体など代表者との協議及び報告(共同住宅に限る)
  • ごみ保管施設設置基準による協議…協議結果により、該当書類の提出

その他、省エネ法や地球温暖化条例、バリアフリー条例などに関する申請届出も必要です。

ボリュームチェックサービス ご提案資料Proposal Document

建物の戸数や規模を把握する
計画建築概要と面積表

敷地条件や法規を踏まえて建てられる戸数や規模を算出し、計画建築概要と面積表にまとめたご資料をご提供します。数字に基づく明確な計画像を共有することで、関係者間の認識を揃え、最適なプラン検討を支えます。

物件の概要をイメージできる
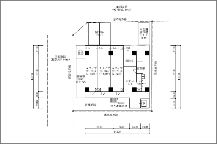
単線プラン(平面図)のご提案

現地状況や近隣条件を踏まえた建物配置、動線、駐輪・駐車計画など、物件の全体像を把握しやすい単線プランをご提供します。

建物の形と高さを決定づける
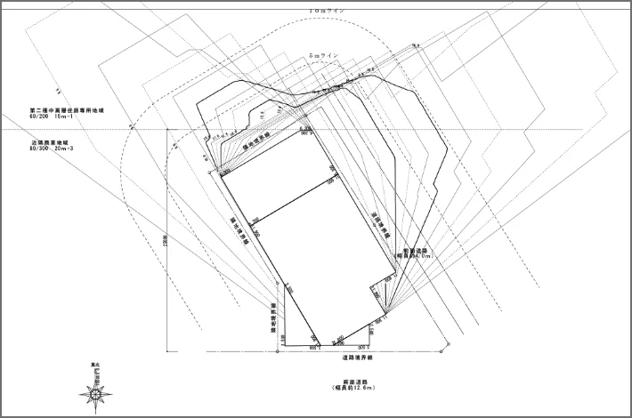
天空率・日影図の作成

天空率・日影図は、法規や周辺環境条件を踏まえて建物の形や高さを導き出すための重要な資料です。法的適合性の確認とあわせて、設計初期から実現可能な建物ボリュームを明確化します。

サービス料金Price

ボリュームチェックのみご依頼の場合

ボリュームチェック料金

3〜10万円(税込)

※敷地面積の大小、各種規制の多さによって費用が変動いたします。

その後に本設計をご依頼の場合

ボリュームチェック料金

無料

※本設計までに期間を要する場合は応相談

お問い合わせContact us

ボリュームチェックのご依頼、お見積ご希望の方は以下のフォームからお問い合わせください。
物件情報をご入力いただければよりスムーズに対応が可能です。

御社名
必須お名前
必須ふりがな
電話番号
必須メールアドレス
計画地
※可能であれば住所のご入力をお願いいたします。
ご要望の用途
※共同住宅、ホテルなど
敷地面積  単位:㎡
必須敷地測量図の有無
ご希望の納期
必須お問い合わせ内容

Company会社概要

会社名 山野設計株式会社
所在地 〒604-0932 京都市中京区妙満寺前町454-3呉波ビル3A
TEL TEL 075-257-2700
E-mail »お問い合わせフォーム
設立 1985年2月26日
資本金 1000万円
代表者 代表取締役 山野 大介
事業内容 共同住宅・ホテル・商業施設・医療施設・個人住宅等の建築設計・監理
収支計画のアドバイス
商業施設のプロデュース、コンセプトワーク
テナントのリーシング